indietro 2002 vasi  TANGRAM
pianta tipo 1
pianta tipo 2
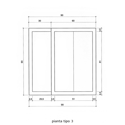
pianta tipo 3
pianta tipo 4 prospetto